| ID # | RLS20074844 |
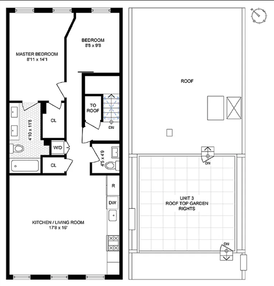
| Detay | 2 chanm, 1 twalèt, 1 demi twalèt, lave-vaiselle, enteryè: 812 ft2, 75m2, 3 kay nan batiman an, batiman an gen 3 etaj DOM: 22 jou |
| Ane konstriksyon | 1899 |
| Frè antretyen | $341 |
| Taks (pa ane) | $4,248 |
| Bis (MTA) | 1 minit pou bis B67, B69 |
| 4 minit pou bis B61, B63 | |
| 8 minit pou bis B103, B68 | |
| Tren anba tè | 5 minit pou tren F, G |
| 8 minit pou tren R | |
| Tren (LIRR) | 1.4 mil pou "Atlantic Terminal" |
| 2.1 mil pou "Nostrand Avenue" | |
![]() |
PANTOU PENTHOUSE NAN KÈ PARK SLOPE
Leve ou ak solèy ki ap koule nan tout ekspozisyon nò ak sid. Louvri fenèt ou pou wè tèt pye bwa nan yon blòk brwon ki trankil. Penthouse sa a ki gen tout etaj la ak 2 chanm, ofri yon chalè, vi prive, ak cham ki defini lavi nan Park Slope.
Sitiye anwo yon condominium ti kay, kay sa a melanje karaktè klasik Brooklyn ak desen kontanporen pwòp. Planche blan chenn kouri tout kote, ki tache anndan ki lejè yo ak yon sans de kalm. Gwo plafon ak limyè natirèl kreye yon atmosfè ki santi l ouvè men ki ankrè alafwa — yon espas ki imedyatman santi l tankou yon kay.
Zòn vivan an fèt pou koneksyon — kafe nan maten bò fenèt yo, aswè detann ak zanmi, oswa swa trankil nan kay la. Kwizin chef la ouvè byen ankran espas la, li gen armoires an bwa solid ki fèt espesyalman, kontwa an marbre Carrara, fixtures Grohe, ak yon suite aparèy Bosch ak GE ki anwo nan syèl la. Li fonksyonèl kòm li elegan — li adapte egalman pou dine nan swa semèn yo oswa òganize rasanbleman inoubliab.
Chambre pri marye a se yon retrè trankil, ofri limyè dou nan sid ak yon beny en-suite enspire pa spa fini ak fittings Kohler Purist, vanites ki flote, ak yon melanj rafine de wòch Bianca Carrara, Thassos, ak Bardiglio. Yon dezyèm chanm espasyal ak yon twalèt pwòp konplete plan an konsyan.
Konfò modèn yo gen ladann sistèm lè santral milti-zòn ak chofaj, machin lave/sechè nan inite a, limyè anfonse, pre-wiring pou kay entelijan, ak depo prive — sa asire fasilite san yo pa konpwomèt karaktè a.
Bati an 1899 ak yon reimajine ak anpil panse, 362 13th Street chita sou yon blòk pitorèsk ki gen pye bwa jis kèk moman soti nan antre 9th Street pou Prospect Park. Pase maten nan pak la, apremidi ap eksplore 7th ak 8th Avenue, ak aswè manje nan restoran ki popilè nan katye a tankou Pasta Louise.
E petèt karakteristik ki pi espesyal la — do a se pou kay sa a sèlman, ki ofri opòtinite pou kreye yon sante twati prive anba syèl Brooklyn lan.
Sa a se lavi penthouse ak nanm — entim, ranpli ak limyè, ak san dout Park Slope.
PENTHOUSE CONDO LIVING IN THE HEART OF PARK SLOPE
Wake up to sunlight streaming in from both north and south exposures. Open your windows to treetop views on a quiet brownstone block. This full-floor, 2-bedroom penthouse offers the kind of warmth, privacy, and charm that defines life in Park Slope.
Set atop an intimate townhouse condominium, this home blends classic Brooklyn character with clean, contemporary design. White oak floors run throughout, grounding the airy interiors with a sense of calm. High ceilings and natural light create an atmosphere that feels open yet deeply comfortable — a space that instantly feels like home.
The living area is designed for connection — morning coffee by the windows, relaxed evenings with friends, or quiet nights in. The open chef’s kitchen anchors the space beautifully, featuring custom solid wood cabinetry, Carrara marble countertops, Grohe fixtures, and a premium Bosch and GE appliance suite. It’s as functional as it is elegant — equally suited for weeknight dinners or hosting unforgettable gatherings.
The oversized primary bedroom is a peaceful retreat, offering soft southern light and a spa-inspired en-suite bath finished with Kohler Purist fittings, floating vanities, and a refined blend of Bianca Carrara, Thassos, and Bardiglio stone. A spacious second bedroom and stylish powder room complete the thoughtful layout.
Modern comforts include multi-zoned central air and heat, in-unit washer/dryer, recessed lighting, smart-home prewiring, and private storage — ensuring ease without compromising character.
Built in 1899 and thoughtfully reimagined, 362 13th Street sits on a picturesque, tree-lined block just moments from the 9th Street entrance to Prospect Park. Spend mornings in the park, afternoons exploring 7th and 8th Avenue, and evenings dining at neighborhood favorites like Pasta Louise.
And perhaps the most special feature of all — the roof is deeded exclusively to this residence, offering the opportunity to create a private rooftop sanctuary under the Brooklyn sky.
This is penthouse living with soul — intimate, light-filled, and unmistakably Park Slope.
This information is not verified for authenticity or accuracy and is not guaranteed and may not reflect all real estate activity in the market. © 2026 The Real Estate Board of New York, Inc., All rights reserved.







