| ID # | RLS20076914 |
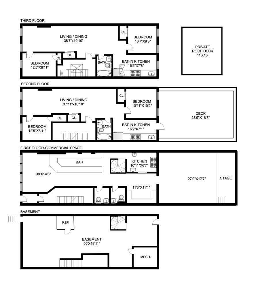
| Detay | 4 chanm, 2 twalèt, 2 kay nan batiman an, batiman an gen 3 etaj DOM: 1 jou |
| Ane konstriksyon | 1899 |
| Taks (pa ane) | $120,288 |
| Bis (MTA) | 1 minit pou bis B43, B44+, B49 |
| 3 minit pou bis B44 | |
| 7 minit pou bis B48 | |
| 8 minit pou bis B16, B41 | |
| 10 minit pou bis B12 | |
| Tren anba tè | 3 minit pou tren 2, 5 |
| 9 minit pou tren B, Q | |
| 10 minit pou tren 3 | |
| Tren (LIRR) | 1.1 mil pou "Nostrand Avenue" |
| 1.8 mil pou "Atlantic Terminal" | |
![]() |
Pwofese yon batiman melanje ki robust ki genyen youn nan restoran komèsyal ki pi élégance ak otantik nan Brooklyn, lounge, ak espas mizik nan zòn nan. Anplis, pwopriyete a ofri tou de inite rezidansyèl ki gen de gwo chanm ki menm jan, youn ak espas deyò. Renaissance ki kontinye nan tout bagay PLG la vrèman dinamik. Rogers Ave. te ajoute yon kantite pwodwi ak sèvis pou amelyore estilo lavi kominote a. Aksè nan métro a abondo ak de liy métro, fasilman aksesib 2/5/Q/B/S.
Prospect Park ak Brooklyn Botanic Garden se karakteristik katye Lefferts Garden, tou de trè pre. Anplis, Lindl, Lincoln Market ak Western Beef ofri yon varyete makèt bon kalite. Tou de inite de chanm yo enpeccables. Apatman de-chanm/1-bain sa yo chita konfòtab pandan tout espas komèsyal sa a nan Prospect Lefferts Gardens ki vivan. Youn nan inite yo ofri yon gwo espas deyò ki bay yon lavi ki wo nan kalite. Tou de inite yo klere, yo gen nouvo planche, aparèy, ekleraj, ak sistèm divize ansanm ak radyatè.
Youn nan inite yo bay yon espas deyò ki ajoute yon valè enpòtan pou prentan, ete ak otòn. Tou de genyen gwo zòn vivan, yo prezante zòn manje separe, ansanm ak zòn vivan ki elaji ki bay gwo konfò ak valè.
Espas komèsyal la se vrèman yon bagay pou pwopriyetè bilding lan se pou l fyète paske lokal la byen akeyi ak atire yon foul ki élégance men otantik. Lounge la ofri yon estetik ki se pami pi bon nan Brooklyn.
De valè enpòtan se apeprè 1500 pye kare espas bati ki reprezante nan adisyon-FAR!
Presenting this robust mixed use building which features one of Brooklyn's most elegent and authentic commercial restaraunt, lounge, music venues in the borough. Additionally, the property also offers, two spacious split-bedroom, identical residental units, one with outdoor space. The continued renaissance of all things PLG is truly dynamic. Rogers Ave. has added a plethora of goods and services to enhance the lifestyle of the community. Subway access is abundant with two subway lines, easily accessible 2/5/Q/B/S.
Prospect Park and the Brooklyn Botanic Garden, are features of the Lefferts Garden neighborhood both very close by. Additionally, Lindl, Lincoln Market and Western Beef offer a variety of quality supermarkets. Both two bedroom units are impeccable. These two-2bed/1bath apartments sit comfortably above this retail space in vibrant Prospect Lefferts Gardens. One unit offers a large and spacious outdoor space for a high quality of life. Both units are bright floor throughs and feature new floors, appliances, lighting, and split-systems along with radiators.
One unit delivers an outdoor space that adds tremendous value to the Spring, Summer and Fall. Both have spacious living areas, they present a seperate dining areas, coupled with sprawling living areas which provide tremendous comfort and value.
The commerical space is truly something for the building owner to be proud of as the venue is well received and draws an elegant yet authentic crowd. The Lounge offers an asthetic that is among the best in Brooklyn.
Of tremendous value is roughly 1500 sq. ft. of builable space represented in additional-FAR!
This information is not verified for authenticity or accuracy and is not guaranteed and may not reflect all real estate activity in the market. © 2026 The Real Estate Board of New York, Inc., All rights reserved.







