| ID # | RLS20073891 |
| Detay | 7 chanm, 4 twalèt, 2 demi twalèt, lave-vaiselle, machin lave, machin sèch, enteryè: 4349 ft2, 404m2, 2 kay nan batiman an, batiman an gen 4 etaj DOM: 120 jou |
| Ane konstriksyon | 1899 |
| Taks (pa ane) | $1,992 |
| Bis (MTA) | 1 minit pou bis B44, B52 |
| 3 minit pou bis B48 | |
| 4 minit pou bis B26, B38, B44+ | |
| 8 minit pou bis B25, B49 | |
| 10 minit pou bis B43 | |
| Tren anba tè | 4 minit pou tren G |
| 8 minit pou tren C | |
| 9 minit pou tren S | |
| 10 minit pou tren A | |
| Tren (LIRR) | 0.7 mil pou "Nostrand Avenue" |
| 1.1 mil pou "Atlantic Terminal" | |
![]() |
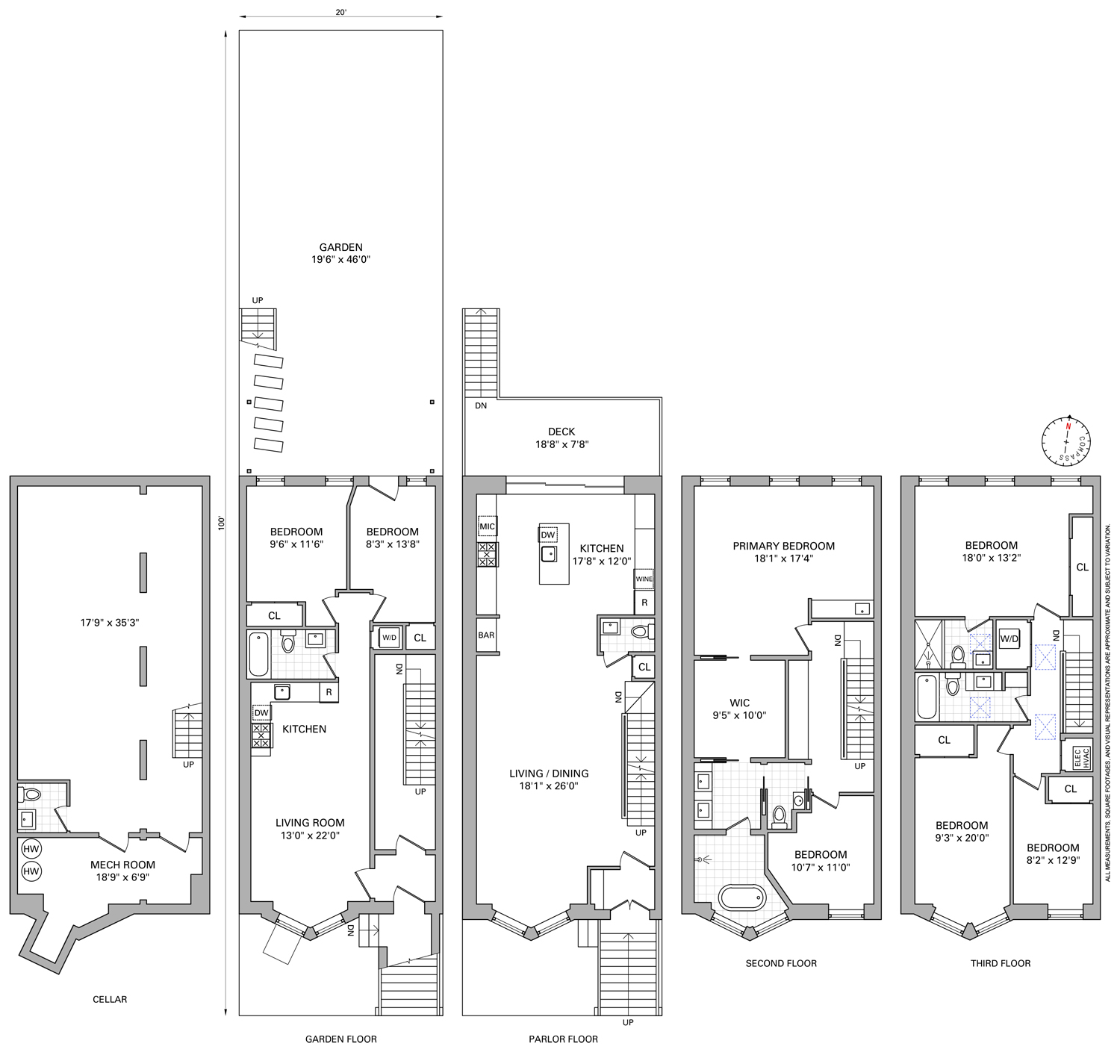
Nan 167 Quincy Street, achitekti klasik Brownstone nan Brooklyn rankontre avèk yon renovasyon modèn reflechi ki fèt pou vi kontanporen. Mete nan yon lokalizasyon eksepsyonèl nan Bedford-Stuyvesant, kay de fanmi sa a ki byen fèt ofri gwo pwopòsyon, fini modèn, ak yon vi fleksib.
Lè ou monte sou pil klasik Brownstone nan, nivo sal la devlope ak echèl ak gran dlo ki defini pi bèl kay yo. Plafon wo, fenèt gwo, ak planch chene an bra ron ki frapan kreye yon espas k ap viv ak manje ki byen limen kote detay achitekti ki byen fèt melanje san pwoblèm avèk fini sofistike.
Nan kè premye etaj la, yon kwizin chèf ki byen fèt sab nan espas la avèk mobilye chene koutim, aparèy Thermador entegre ki anwo kalite, tèt Taj Mahal, ak yon zile ki jere ideyal pou resepsyon oswa vi chak jou. Plan an koule san pwoblèm ant zòn k ap viv, manje, ak kwizin, kreye yon anviwònman fasil pou rasanbleman ki gwo ak piti. Nouvo nan limyè natirèl, kwizin nan ouvri atravè pòt vè elaji sou yon patyo prive ki bay sou jaden an—yon pwolonje envitasyon nan espas k ap viv pou kafe maten oswa rasanbleman aswè.
Etaj yo ofri kay prive trankil ki fèt pou maksimize limyè, konfò, ak fleksibilite. Suite prensipal la sèvi kòm yon retrè trankil ki gen yon ba mouye ki byen entegre, yon gwo klozèt ki ouvè, ak yon ben ki enspire spa ak fini élégance, yon douch ki fèmen nan vè, ak yon ben ki pwofon. Kat chanm adisyonèl ak de twalet yo gen gwo dimansyon ak fasil pou adapte pou fanmi, envite, oswa yon biwo lakay dedye.
Nivo jaden an bay yon versatilite eksepsyonèl ak yon apatman de chanm, yon twalèt ki totalman endepandan, ki gen pwòp espas k ap viv, kwizin modèn, ak aksè dirèk nan lakou prive a. Ideyal kòm yon lwaye ki pwodwi revni, rezidans envite, oswa espas pou viv elaji, plan an ofri yon fleksibilite enpòtan.
Pandan tout kay la, enfrastrikti modèn nan awetman amelyore lavi chak jou, ki gen ladan klimatizasyon santral, yon sistèm oratè entegre, fenèt ki pèfòme byen, espas depo ki byen panse, ak detay ki pa janm demode ki ajoute chalè ak teksti.
Sitiye nan kè Bedford-Stuyvesant, 167 Quincy Street antoure pa kafe, restoran, ak magazen endepandan yo renmen anpil tankou Lucy’s, Swan, Do or Dive ak anpil lòt ankò. Zòn nan ofri yon atmosfè vivan men kalm, ak pak tou pre ak aksè pratik nan liy metro A/C/G ak bis B26 pou vwayaje fasil nan Brooklyn ak nan Manhattan. Ayewopò JFK la se tou jis yon ti vwayaj an machin.
At 167 Quincy Street, classic Brooklyn brownstone architecture meets a thoughtful modern renovation designed for contemporary living. Set in an exceptional Bedford-Stuyvesant location, this beautifully designed two-family townhouse offers generous proportions, modern finishes, and flexible living.
Ascending the classic brownstone stoop, the parlor level unfolds with the scale and grandeur that define the finest townhouses. Soaring ceilings, oversized windows, and striking herringbone oak floors create a luminous living and dining space where beautifully crafted architectural details blend seamlessly with sophisticated finishes.
At the heart of the parlor floor, a beautifully designed chef’s kitchen anchors the space with custom oak cabinetry, premium integrated Thermador appliances, Taj Mahal countertops, and a generous island ideal for entertaining or everyday living. The layout flows seamlessly between the living, dining, and kitchen areas, creating an effortless setting for gatherings both large and small. Bathed in natural light, the kitchen opens through expansive glass doors onto a private deck overlooking the garden—an inviting extension of the living space for morning coffee or evening gatherings.
The upper floors offer serene private quarters designed to maximize light, comfort, and flexibility. The primary suite serves as a tranquil retreat featuring a beautifully integrated wet bar, a spacious walk through closet, and a spa-inspired bath with elegant finishes, a glass-enclosed shower, and a deep soaking tub. Four additional bedrooms and two bathrooms are generously scaled and easily adaptable for family, guests, or a dedicated home office.
The garden level provides exceptional versatility with a fully independent two-bedroom, one-bath apartment featuring its own living space, modern kitchen, and direct access to the private backyard. Ideal as an income-producing rental, guest residence, or extended living space, the layout offers tremendous flexibility.
Throughout the home, modern infrastructure quietly enhances daily life, including central air conditioning, a built-in speaker system, high-performance windows, thoughtfully integrated storage, and timeless details that add warmth and texture.
Located in the heart of Bedford-Stuyvesant, 167 Quincy Street is surrounded by beloved neighborhood cafés, restaurants, and independent shops such as Lucy’s, Swan, Do or Dive and many more. The area offers a vibrant yet relaxed atmosphere, with nearby parks and convenient access to the A/C/G subway lines and the B26 bus for easy travel throughout Brooklyn and into Manhattan. JFK Airport is also just a short drive away.
This information is not verified for authenticity or accuracy and is not guaranteed and may not reflect all real estate activity in the market. © 2026 The Real Estate Board of New York, Inc., All rights reserved.







