| MLS # | 963998 |
| Detay | 4 chanm, 2 twalèt, 1 demi twalèt, lave-vaiselle, machin lave, garaj, kondisyone lè, Gwosè Tè: 0.46 kawo tè, enteryè: 2600 ft2, 242m2 DOM: 21 jou |
| Ane konstriksyon | 2026 |
| Kalite gaz | Gaz Natirèl |
| Kalite chalè | Lè cho |
| Kondisyone lè | Kondisyonè lè santral |
| Sousòl | Sòl konplè |
| Kalite Garaj | Garaj atache |
| Tren (LIRR) | 5.3 mil pou "Yaphank" |
| 7 mil pou "Mastic Shirley" | |
![]() |
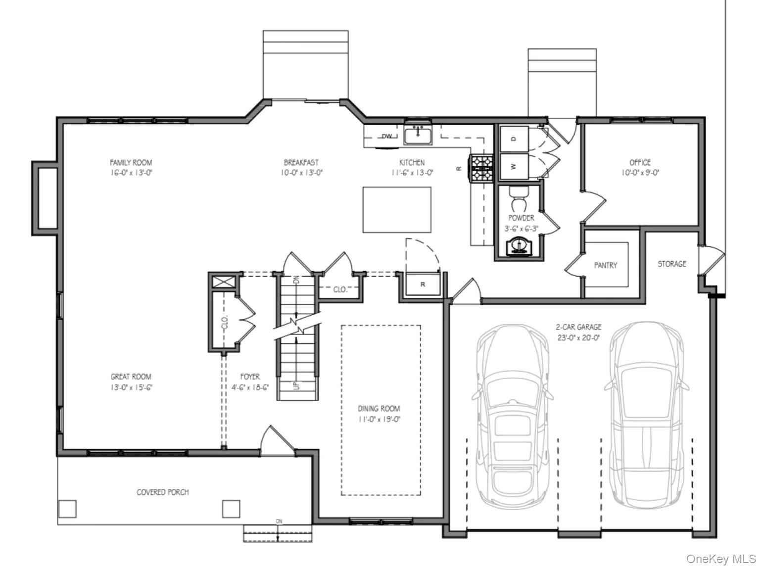
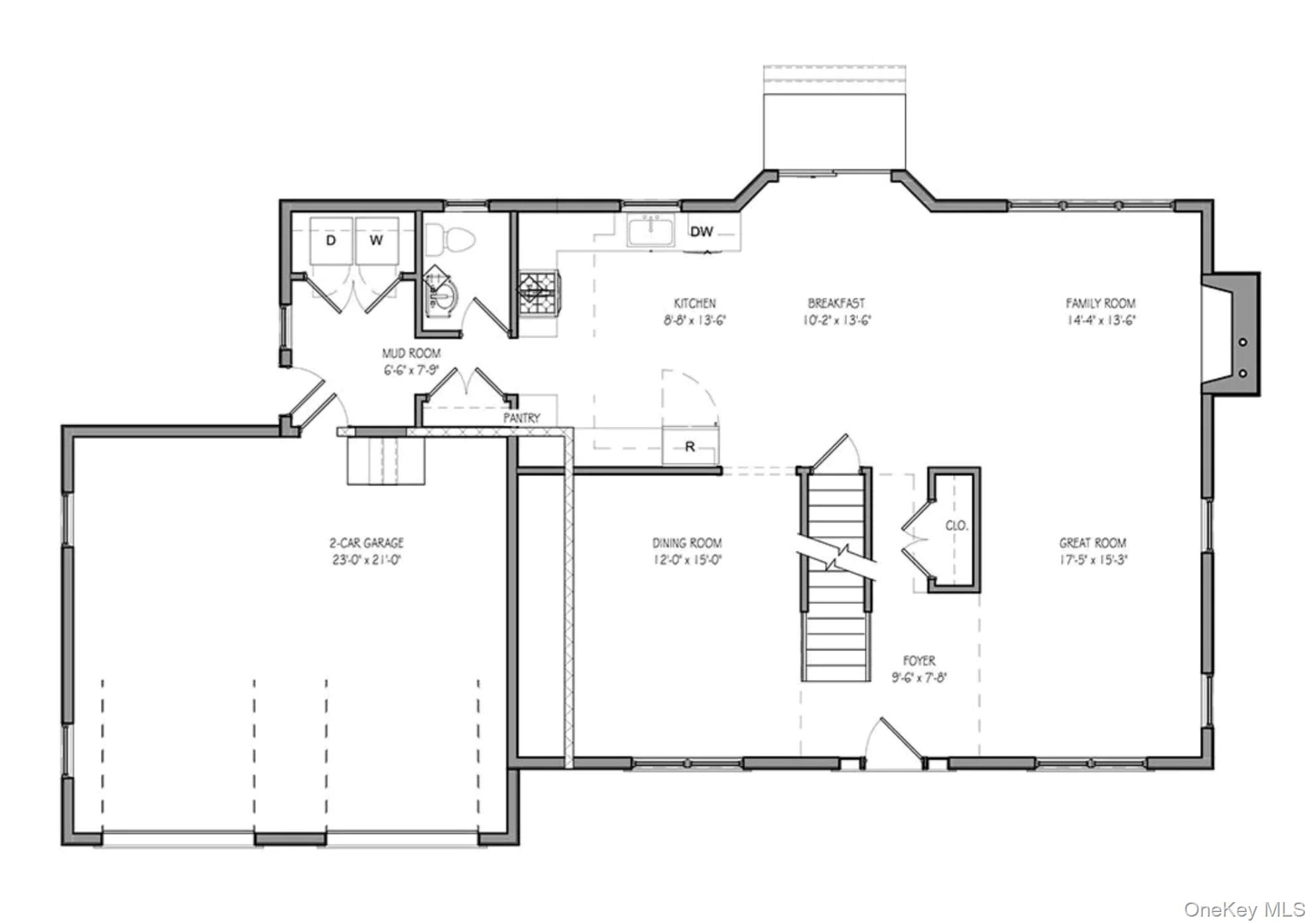
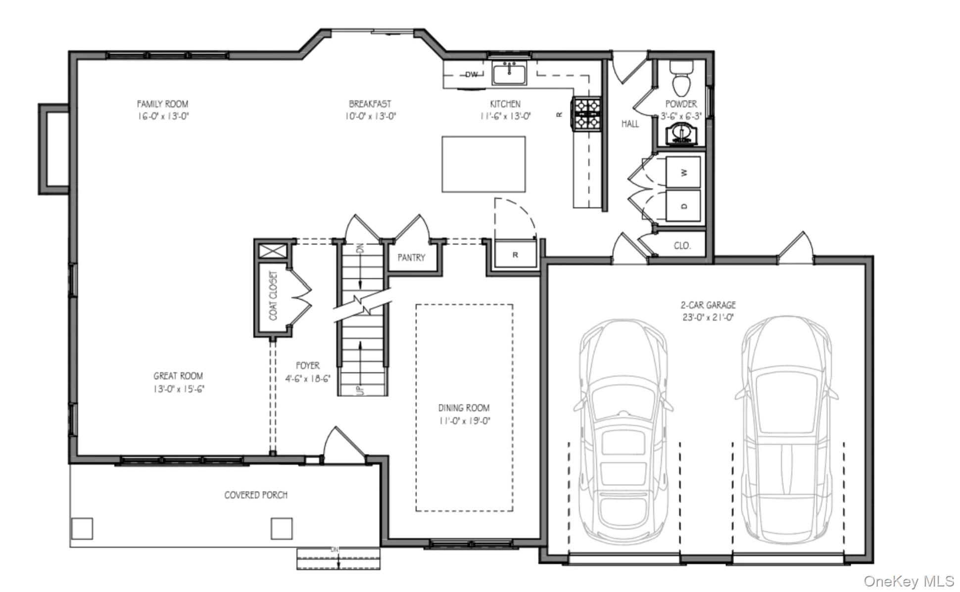
Nouvo konstriksyon kolonial – Ap bati. 4 chanm, 2.5 twalèt Opòtinite enkwayab pou konstwi kay rèv ou ak yon to enterè ki ba tankou 4.99%! Teran sa a gen opsyon pou ajoute yon bazen ak yon sòti konplè pou aksè nan nivo tè a soti nan lakou ki twò gwo a! Chwazi nan twa modèl ki fèt avèk anpil refleksyon: Mattituck, Jamesport, ak Jamesport Plus. Chak modèl ofri yon layout espas ki gen anpil espas ak fonksyonèl ak kouvèti ki fèt ak bon kalite toutotou. Bèl kolonial sa a ap gen kat chanm ki gen yon boyo gwosè, de ak yon demi twalèt, ak yon garaj konekte ki gen kapasite pou de machin ki gen aksè andedan. Karakteristik eksteryè yo gen ladan yo twati achitekti ak granules ki gen yon garanti 30 ane, yon avni bitumen ak yon chemen, yon porch devan ki kouvri, ak yon kouvèti vinil ki pa mande antretyen. Akse wòch yo disponib sou demann. Kay la ap gen tou gouttiè aliminyòm ak dirijan, priz elektrik eksteryè ak bib dlo devan ak dèyè, yon pòt glisman an vè 6 pye, ak lakou devan ak dèyè ki gen grenn. Anndan, kay la ofri plafon 9 pye nan nivo prensipal la, plafon 8 pye nan dezyèm etaj ak bazen an, epi planche an fwa wa wouj nan salon an, salas fanmi an, sala manje a, ak koridò anlè. Sala manje a gen yon plafon plato ak modèl wòch. Kwizin ak twalèt yo ap gen seramik, pandan y ap chanm yo ap gen tapi konfòtab ki kouvri tout miray yo. Yon chemine gaz 36” bay yon sant cho nan espas vivan an. Lòt karakteristik yo gen ladan yo ramp oak ak balustrad blan, limyè antrene (10 aparèy), ak yon chwa pòt enteryè ak modèl kolonial ak baz. Convenience gen ladan koneksyon pou yon machin lave ak sechwa, de priz telefòn, de priz kab, ak yon garaj ki konekte pou yon ouvè pòt. Peint Benjamin Moore (de chwa koulè) ak trim blan enkli. Etajè nan klozèt yo kouvri PVC toutotou, ak pakè amelyorasyon opsyonèl ki disponib pou chanm prensipal la. Twalèt designer ak twalèt seramik nan tout twalèt yo, double vanity, beny ak douch nan Chanm Prensipal la. Kwizin Gourmet ak yon zile sant ak yon lavabo asye pur 36” ka personnalize selon preferans ou. Pa rate chans lan pou personnaliser finisyon ou yo epi kreye yon kay ki adapte ak stil de vi ou. Yon opòtinite nouvo konstriksyon ra nan yon zòn ki trè dezirab!
New Construction Colonial – To Be Built. 4 Bedrooms, 2.5 Bathrooms Incredible opportunity to build your dream home with an interest rate as low as 4.99%! This Lot has the option to add a full walk out basement for ground level access from the oversized yard! Choose from three thoughtfully designed models: The Mattituck, The Jamesport, and The Jamesport Plus. Each model offers a spacious and functional layout with high-quality finishes throughout. This beautiful Colonial will feature four generously sized bedrooms, two and a half bathrooms, and an oversized attached 2 car garage with interior access. Exterior features include architectural roof shingles with a 30-year guarantee, a blacktop driveway and walkway, a covered front porch, and maintenance-free vinyl siding. Stone accents are available upon request. The home will also include aluminum gutters and leaders, exterior electrical outlets and hose bibs in the front and rear, a 6’ sliding glass door, and seeded front and rear yards. Inside, the home offers 9-foot ceilings on the main level, 8-foot ceilings on the second floor and basement, and red oak hardwood flooring in the living room, family room, dining room, and upstairs hallway. The dining room is enhanced with a tray ceiling and crown molding. The kitchen and bathrooms will feature ceramic tile, while the bedrooms will have comfortable wall-to-wall carpeting. A 36” gas fireplace provides a cozy centerpiece in the main living space. Additional highlights include oak handrails with white balusters, recessed lighting (10 fixtures), and a choice of interior doors with colonial-style molding and baseboards. Conveniences include hookups for a washer and dryer, two telephone outlets, two cable outlets, and a garage wired for a door opener. Benjamin Moore paint (two color choices) with white trim is included. Closet shelving is PVC-coated throughout, with optional upgrade packages available for the primary bedroom. Designer bathrooms with ceramic tiles in full bathrooms, double vanity, soaking tub and shower in Primary. Gourmet Kitchen with center island and 36" stainless steel sink can be customized to your liking. Don’t miss the chance to personalize your finishes and create a home tailored to your lifestyle. A rare new construction opportunity in a highly desirable area!
This information is not verified for authenticity or accuracy and is not guaranteed and may not reflect all real estate activity in the market. Listing courtesy of Coldwell Banker American Homes © 2026







