| ID # | RLS20069230 |
| Detay | 4 chanm, 2 twalèt, 1 demi twalèt, garaj, batiman an gen 3 etaj DOM: 2 jou |
| Ane konstriksyon | 1922 |
| Taks (pa ane) | $80,664 |
| Bis (MTA) | 2 minit pou bis Q43 |
| 3 minit pou bis Q20A, Q20B, Q44 | |
| 4 minit pou bis Q40 | |
| 5 minit pou bis Q111, Q112, Q113, Q25, Q34, Q83 | |
| 6 minit pou bis Q110, Q65 | |
| 8 minit pou bis Q06, Q08, Q09, Q24, Q30, Q31, Q41, Q54, Q56, Q60 | |
| 10 minit pou bis Q4, Q42, Q5, Q84, Q85 | |
| Tren anba tè | 4 minit pou tren F |
| 10 minit pou tren E, J, Z | |
| Tren (LIRR) | 0.5 mil pou "Jamaica" |
| 1.2 mil pou "Kew Gardens" | |
![]() |
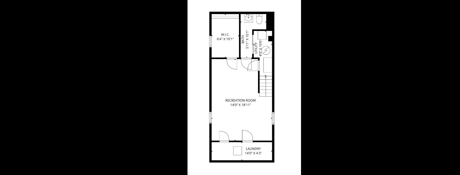
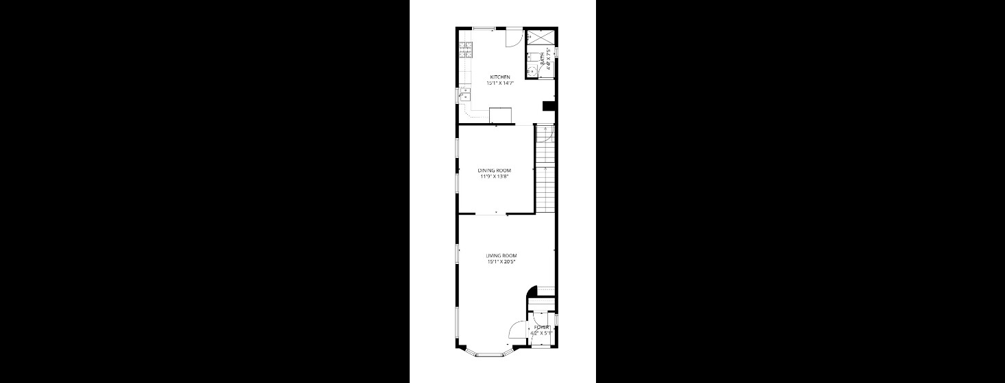
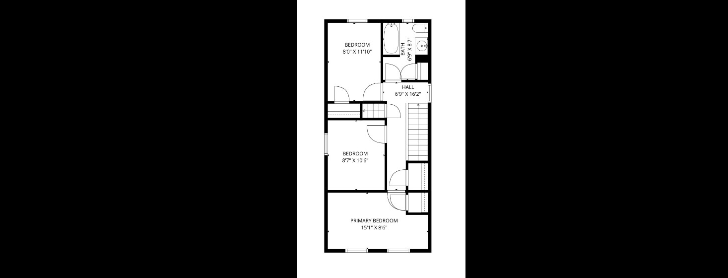
Byenveni nan Briarwood... Sa a se yon Kolonyal ki separe ki gen yon Kwizin ki renove ak yon Sant Nè, planch Granit, yon fou ki gen de ane, anpil kabinèt ak aksè nan lakou prive a. Anplis de sa, gen yon Sal Manje Fòmèl ki gwo, yon sal vivan spacious ak yon fenèt kòn ki gen 1 1/2 ane ak yon twalèt konplè renove sou 1ye etaj la. Dezyèm etaj la ofri 3 chanm, yon twalèt konplè renove ak 3yèm etaj la ki gen yon lòt chanm. Yon baz ki fini konplètman ak yon chanm amizman, yon twalèt 1/2 ki renove, anpil espas pou kabinè ak OSE. Pratik pou tout bagay ki gen ladan; tren E, F, J ak Z, bis ekspres, JFK Air Train (Jamaica Station), bis, magazen ak plis ankò. Kay sa a se yon bagay ou dwe wè!
Welcome to Briarwood...This Detached Colonial features an Renovated Eat-In Kitchen with Center Island, Granite countertops, two year old stove, plenty of Cabinetry & Access to the Private Yard. In addition an oversized Formal Dining room, spacious living room with 1 1/2 year old bay window & 1st Floor renovated full bathroom. The 2nd floor offers 3 bedrooms, one renovated full bathroom & walk-up 3rd floor with an additional bedroom. A full finished basement with entertainment room, renovated 1/2 bath, lots of closet space & OSE. Convenient to All including; E, F, J & Z Trains, Express Buses, JFK Air Train (Jamaica Station), Buses, Shopping & more. This Home Is A Must See!
This information is not verified for authenticity or accuracy and is not guaranteed and may not reflect all real estate activity in the market. ©2025 The Real Estate Board of New York, Inc., All rights reserved.







