| ID # | RLS20069170 |
| Detay | 5 chanm, 4 twalèt, 2 demi twalèt, lave-vaiselle, machin lave, machin sèch, enteryè: 3725 ft2, 346m2, 2 kay nan batiman an, batiman an gen 3 etaj DOM: 55 jou |
| Ane konstriksyon | 1901 |
| Taks (pa ane) | $5,676 |
| Bis (MTA) | 2 minit pou bis B43 |
| 3 minit pou bis B45, B65 | |
| 4 minit pou bis B15 | |
| 8 minit pou bis B17, B44 | |
| 9 minit pou bis B14, B25 | |
| 10 minit pou bis B46 | |
| Tren anba tè | 6 minit pou tren 3 |
| 9 minit pou tren C | |
| 10 minit pou tren 4 | |
| Tren (LIRR) | 0.5 mil pou "Nostrand Avenue" |
| 2 mil pou "East New York" | |
![]() |
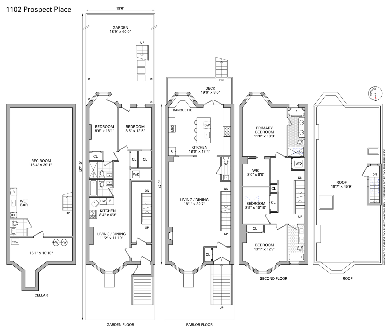
Prezantasyon 1102 Prospect Place, yon bel kay de fanmi ki chita sou yon blòk trankil, ki gen pyebwa, nan kè Crown Heights. Dèyè fasad klasik li a, kay la devlope sou plizyè nivo, melanje karaktè achitekti orijinal ak lavi modèn konfòtab. An total, pwopriyete a ofri yon duplex pwopriyetè trè espas ak yon bazman fini, ansanm ak yon rezidans etaj jaden separe—ideyal pou revni, envite, oswa viv long.
Duplex pwopriyetè a kòmanse nan yon nivo sal akeyan, kote plafon wo, gwo fenèt, detay orijinal, ak brik ekspoze kreye yon sans de limyè ak ouvèti. Yon zòn vivan ak manje ki gen bon jan ap koule san pwoblèm nan yon kwizin ki byen fèt ak mi ak ogmantasyon, ki gen anpil kabinè, espas konsò, yon banquette pou manje, ak aparèy premye kalite, ki gen ladan yon ranje Wolf ak yon frijidè ak lave-vè Fisher & Paykel entegre—ideyal pou lavi chak jou ak gwo rasanbleman. Gwo fenèt ak pòt ki fèt ak de vè bay aksè dirèk nan teras la, ki konekte fasilman lavi anndan ak deyò e ki fè akeyi envite fasil.
Anwo, chanm prensipal la byen pwopòsyonè ak trankil, konplete ak yon gwo closet ki adapte avèk koutim ak yon twalèt atache ki gen yon basen pou ba. De lòt gwo chanm ak yon twalèt konplè ofri fleksibilite pou timoun, envite, yon ti infans, oswa yon biwo kay.
Etaj jaden an ajoute valab vèsatilite, ofri de chanm ak de twalèt konplè, ansanm ak pwòp antre li, kwizin, zòn vivan, ak espas deyò—parfait pou revni lwaye oswa lavi milti-jenerasyon.
Yon bazman ki fin fèt ak yon demi-twalèt ak yon kwit manje fè espas sa a ideyal pou yon sal rekreyasyon ak yon jimnastik nan kay.
Chita sou Prospect Place pitorèsk, kay sa a antoure ak chwa vwazen renmen, enstitisyon kiltirèl tankou Mize Timoun Brooklyn, ak espas vèt tankou Brower Park. Aksè pratik nan liy métro C ak 3 ki tou pre konekte ou fasilman ak rès Brooklyn ak Manhattan. 1102 Prospect Place ofri yon konbinezon ra nan lavi kay klasik, fleksibilite, ak yon kote Crown Heights ki san parèy.
Introducing 1102 Prospect Place, a charming two-family townhouse set on a quiet, tree-lined block in the heart of Crown Heights. Behind its classic façade, the home unfolds across multiple levels, blending original architectural character with comfortable modern living. In total, the property offers a spacious owner’s duplex with a finished basement, along with a separate garden floor residence—ideal for income, guests, or extended living.
The owner’s duplex begins on an inviting parlor level, where high ceilings, tall windows, original details, and exposed brick create a sense of light and openness. A gracious living and dining area flows seamlessly into a thoughtfully designed kitchen with arched walls, featuring ample cabinetry, generous counter space, an eat-in banquette, and premium appliances, including a Wolf range and integrated Fisher & Paykel refrigerator and dishwasher—ideal for both everyday living and large gatherings. Large windows and double glass doors provide direct access to the terrace, effortlessly connecting indoor and outdoor living and making entertaining a breeze.
Upstairs, the primary bedroom is well-proportioned and serene, complemented by a large custom-outfitted closet and an ensuite bathroom complete with a soaking tub. Two additional large bedrooms and a full bathroom offer flexibility for children, guests, a nursery, or a home office.
The garden floor adds valuable versatility, offering two bedrooms and two full bathrooms, along with its own entrance, kitchen, living area, and outdoor space—perfect for rental income or multi-generational living.
A fully finished basement with a half bath and a kitchenette makes this space ideal for a rec room and in-home gym.
Set on picturesque Prospect Place, this home is surrounded by beloved neighborhood favorites, cultural institutions like the Brooklyn Children’s Museum, and green spaces like Brower Park. Convenient access to the nearby C and 3 subway lines connects you easily to the rest of Brooklyn and Manhattan. 1102 Prospect Place offers a rare combination of classic townhouse living, flexibility, and an unbeatable Crown Heights location.
This information is not verified for authenticity or accuracy and is not guaranteed and may not reflect all real estate activity in the market. © 2026 The Real Estate Board of New York, Inc., All rights reserved.







