| MLS # | 954661 |
| Detay | 3 chanm, 1 twalèt, machin lave, machin sèch, kondisyone lè, enteryè: 950 ft2, 88m2 DOM: 1 jou |
| Ane konstriksyon | 1950 |
| Frè antretyen | $1,481 |
| Kalite gaz | Gaz Natirèl |
| Kondisyone lè | Kondisyonè lè nan miray |
| Bis (MTA) | 1 minit pou bis Q27, QM5, QM8 |
| 5 minit pou bis Q30, Q88 | |
| Tren (LIRR) | 1.5 mil pou "Bayside" |
| 1.6 mil pou "Douglaston" | |
![]() |
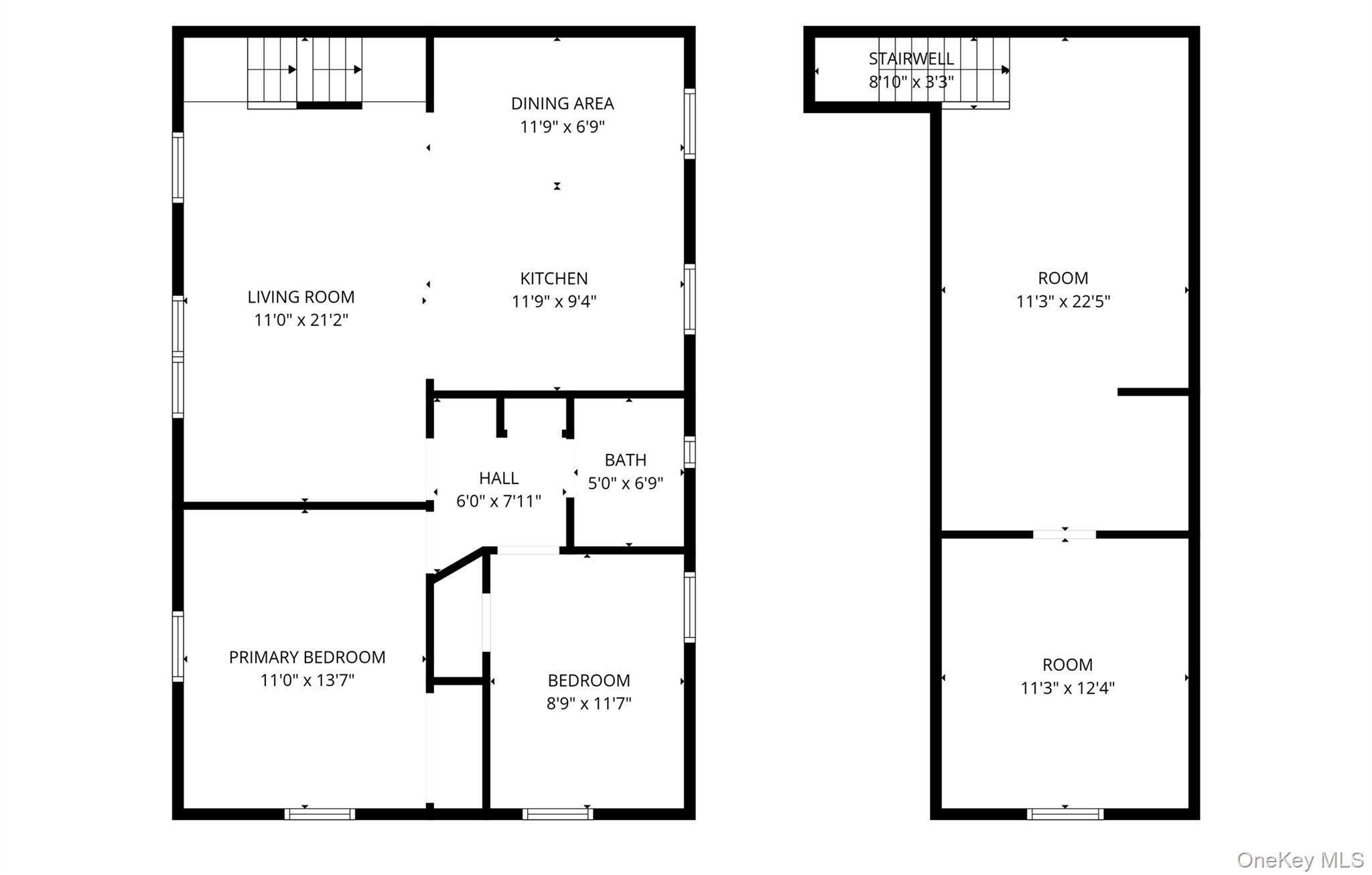
Antre nan sa a bèl apatman 2/3 chanm ki sou dezyèm etaj nan apatman jaden bèl yo. Renovasyon modèn fèt nan de dènye ane yo. Lave, sèchè ak frijidè yo nouvo nan inite a. Apatman sa a gen yon grenye fini ki nan nivo anwo. Li gen planche bwa natirèl ak yon twalèt konplè. Pakin deyò disponib nan lari a, fasil pou pakin nenpòt lè. Pakin andedan kay la disponib tou, men gen yon ti lis tann. Gen transpò piblik ki fasil ak otobis 27 ki ale nan Main St Flushing ale nan Jamaica. Souletaj pèmèt apre de zan, zanmi bèt kay. Frè antretyen chak mwa a se $1481, ki enkli tout sèvis yo eksepte elektrisite. Pa gen taks sou vòl. 10% minimòm peman anfòm obligatwa pa jesyon ko-op la.
Step into this lovely 2/3 bedroom with second floor level unit on beautiful gardens apartments.
Modern renovations within two years. wash ,dryer and refrigerator are new in the unit.
This apartment has finished full attic up-level . its hardwood floors and full bathroom.
Outdoor parking available at street, easy parking anytime.
Indoor parking also available but in shortly waitlist .
Convinced public transport bus 27 to main st flushing to Jamaica.
subletting is permitted after two years, pets friendly.monthly maintenance fee is $1481, including all utilities except electricity. no flip tax. 10% minmum downpayment are required by coop management . © 2025 OneKey™ MLS, LLC







