| ID # | 950056 |
| Detay | Gwosè Tè: 1.6 kawo tè DOM: 22 jou |
| Taks (pa ane) | $2,105 |
![]() |
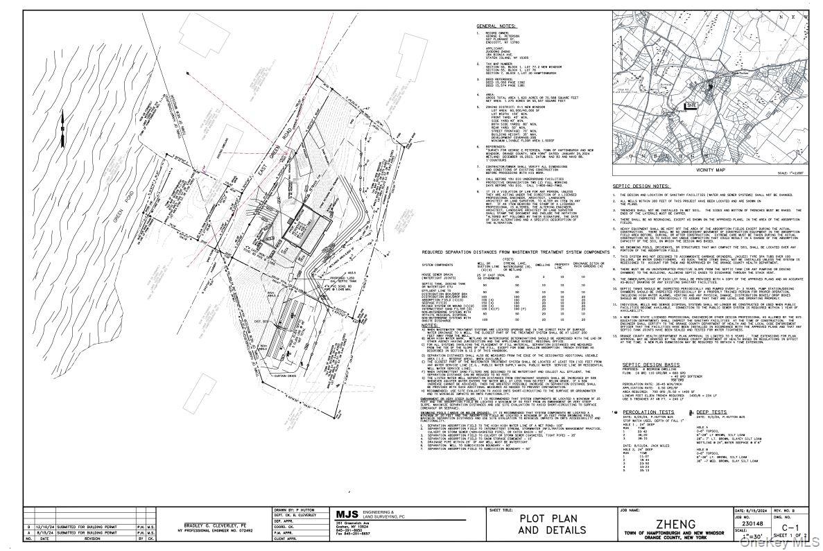
Tèren rezidansyèl pare pou fouye ofri anviwon 1.6 ack ak sondaj fini, enjenyè, plan sit, ak desen achitekti ki deja prepare pou revizyon pèmi. Anpil travay pre-devlopman fèt, ki gen ladan dizayn septik, byen, drenaj, ak aksè pou konstriksyon—ki diminye anpil delè konstriksyon ak ensèten.
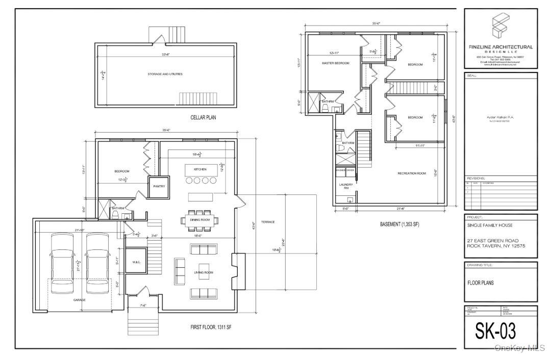
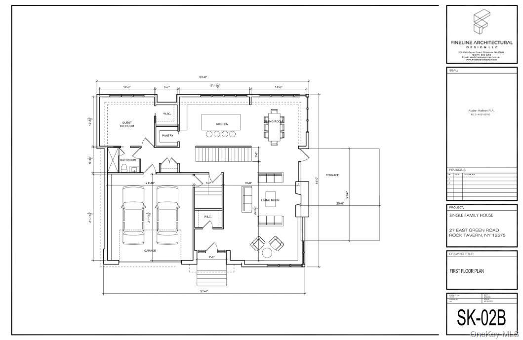
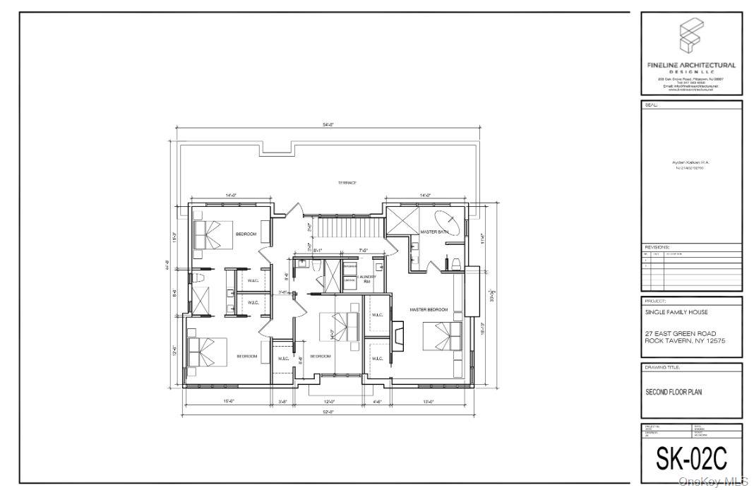
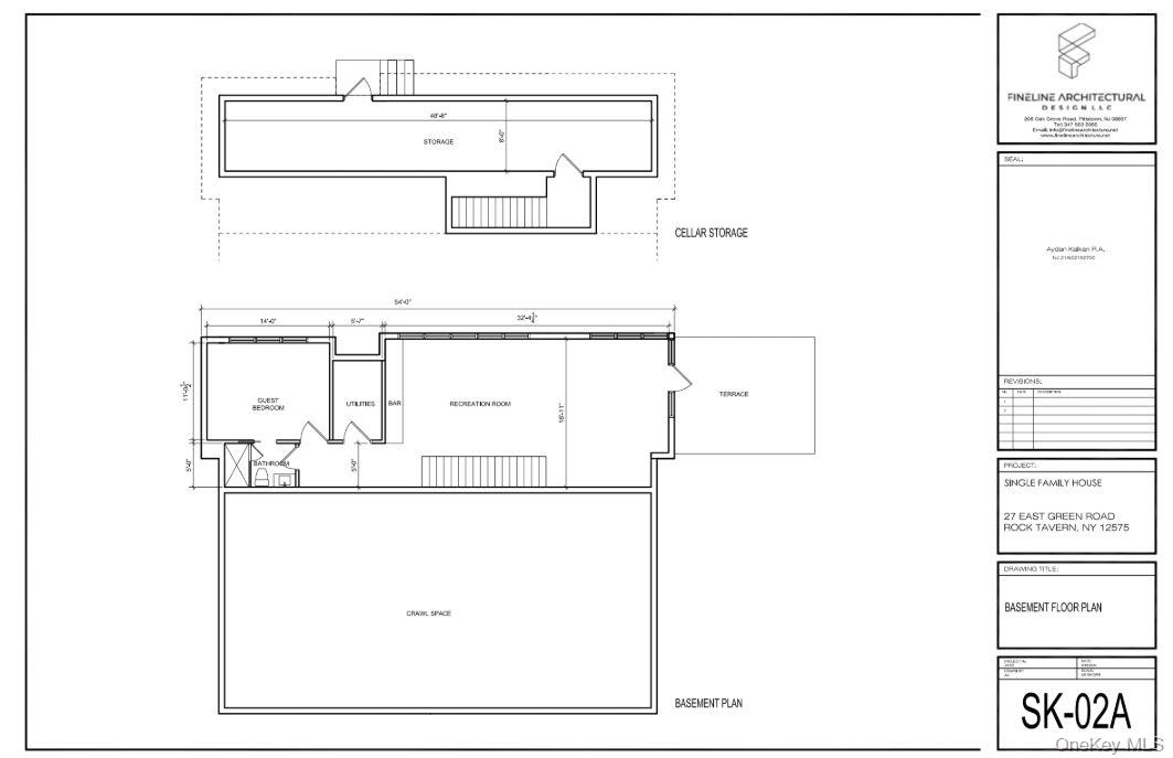
Ofri a gen ladan plan achitekti pou yon rezidans modèn pou yon sèl fanmi, ki gen ladan yon konsepsyon efikas sou pri ak 4 chanm, ansanm ak yon opsyon pi gwo ak 6 chanm.
Vant la gen ladan tou yon tè waterfront separe ki gen yon tit, dirèkteman nan lòt bò lari a, ki ofri anviwon 81 pye sou Green Pond (itilizasyon rekreyatif oswa amelyorasyon sijè a apwobasyon vil la).
Situe nan Distrik Lekòl Washingtonville. Plan, sondaj, ak dokiman enjenyè disponib sou demann.
Shovel-ready residential homesite offering approximately 1.6 acres with completed surveys, engineering, site plan, and architectural drawings already prepared for permit review. Extensive pre-development work has been completed, including septic, well, drainage, and construction access design—significantly reducing build timeline and uncertainty.
The offering includes architectural plans for a modern single-family residence, featuring a cost-efficient 4-bedroom primary design, as well as an alternative larger 6-bedroom option.
Sale also includes a separate deeded waterfront parcel directly across the street, offering approximately 81 feet of frontage on Green Pond (recreational use or improvements subject to town approvals).
Located within the Washingtonville School District. Plans, surveys, and engineering documents available upon request. © 2025 OneKey™ MLS, LLC






