| ID # | RLS20066112 |
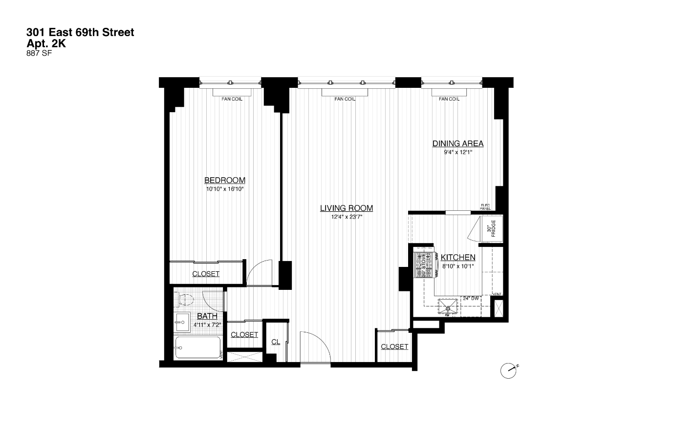
| Detay | 1 chanm, 1 twalèt, garaj, enteryè: 904 ft2, 84m2, 195 kay nan batiman an, batiman an gen 19 etaj DOM: 25 jou |
| Ane konstriksyon | 1963 |
| Frè antretyen | $1,807 |
| Tren anba tè | 3 minit pou tren Q |
| 5 minit pou tren 6 | |
| 8 minit pou tren F | |
| 10 minit pou tren N, W, R | |
![]() |
INITE SPONSOR - PA GEN APROUVASYON SO BORD
Renovasyon an ap fèt. Dènye 4 foto yo montre menm fini sou yon inite ki sanble nan batiman an.
Apartman jumbo 1-chabren/1-bath ak yon alkov manje a nan pwosesis renouvèlman total - tout sa ki manke se ou!
Lemi solèy lwès ki soti nan yon miray fenèt yo lage limyè natirèl nan salon/sala manje ki gen gwo espas ak nan chanm ki gen anpil espas, mete aksan sou planch bwa enjenye ki fèk enstale atravè tout apartman an. Kwizin lan ap gen nouvo kabinè blan ki gen wotè plafon ak aparèy ki fèt avèk kalite siperyè, kontwa caesarstone ak backsplash an mawa. Twalèt la ap gen planch mawa ak miray ak tuile subway pou yon gade modèn pwòp. Gen plizyè gwo klozet ki gen anpil espas pou depo.
Mayfair se yon co-op klasik liksye ki sitiye nan kè Upper East Side la. Amènities yo enkli yon doorman ki la tout tan, yon sipèrentandan ki ap viv andedan, ak yon teras sou do a, ansanm ak chanm pou lave sou chak lòt etaj, yon garaj, ak chanm pou bisiklèt ak depo ki opsyonèl. Bèt kay yo akeyi. Yon evalyasyon k ap fèt de $220.39 pa mwa.
SPONSOR UNIT - NO BOARD APPROVAL REQUIRED
Renovation in Progress. Last 4 photos show same finishes on similar unit in building.
This jumbo 1-bed/1-bath apartment with a dining alcove is in the process of being gut-renovated -- all that's missing is you!
Western sunshine from a wall of windows spills natural light into the sprawling living room/dining alcove and the spacious bedroom, highlighting the newly-installed engineered hardwood floors throughout the apartment. The kitchen will have new white ceiling-height cabinets and high-end appliances, caesarstone countertops and marble backsplash. The bathroom will have marble floors and subway-tiled walls for a clean modern look. There are multiple generously-sized closets for ample storage space.
The Mayfair is classic luxury co-op located in the heart of the Upper East Side. Amenities include a full time doorman, live-in superintendent, and a roof deck, as well as laundry rooms on every other floor, a garage, and optional bike and storage rooms. Pets welcome. Ongoing assessment of $220.39/month.
This information is not verified for authenticity or accuracy and is not guaranteed and may not reflect all real estate activity in the market. ©2025 The Real Estate Board of New York, Inc., All rights reserved.







