| MLS # | 948715 |
| Detay | 2 chanm, 1 twalèt, machin lave, machin sèch, enteryè: 729 ft2, 68m2 DOM: 2 jou |
| Ane konstriksyon | 1930 |
| Kalite gaz | Gaz Natirèl |
| Kalite chalè | Dlo cho |
| Sousòl | Sòl konplè |
| Tren (LIRR) | 0.8 mil pou "Bay Shore" |
| 1.7 mil pou "Islip" | |
![]() |
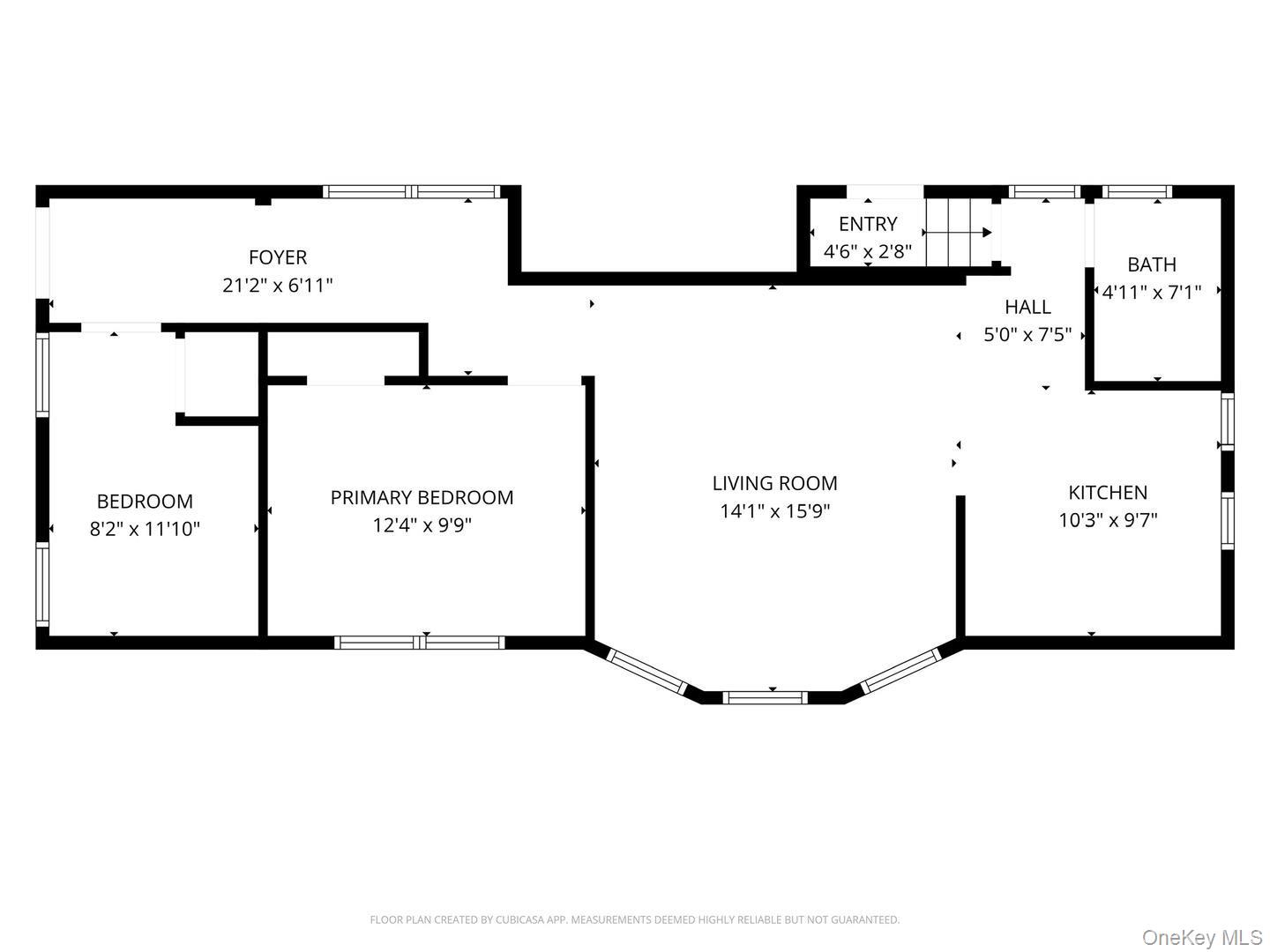
Bèl apatman premye etaj ki fin renovated ki genyen yon kwizin modèn pou manje, yon salon klere ak espas, de chanm, ak yon twalèt ki fèk renove. Pwopriyete a ofri aksè ansanm a lave machin ak sechr, yon sòl ak anpil espas depo, ak yon gwo lakou. Li lokalize prè de Union Boulevard, Sid de Sunrise Highway ak nan distri lekòl Bay Shore. Se yon ti distans sèlman pou ale nan Northwell University Hospital, LIRR, komès ak restoran nan vil la. Lokatè a responsab pou sèvis piblik yo, ki enkli gaz, elektrisite, ak entènèt.
Beautifully renovated first-floor apartment featuring an updated eat-in kitchen, a bright and spacious living room, two bedrooms, and a newly renovated bathroom. The property offers shared washer and dryer access, a basement with ample storage, and a large yard. Conveniently located just north of Union Boulevard, South of Sunrise Highway and within the Bay Shore School District. Just a short distance to Northwell University Hospital, the LIRR, Village shopping and restaurants. Tenant is responsible for utilities, including gas, electric, and internet. © 2025 OneKey™ MLS, LLC







