| ID # | 943681 |
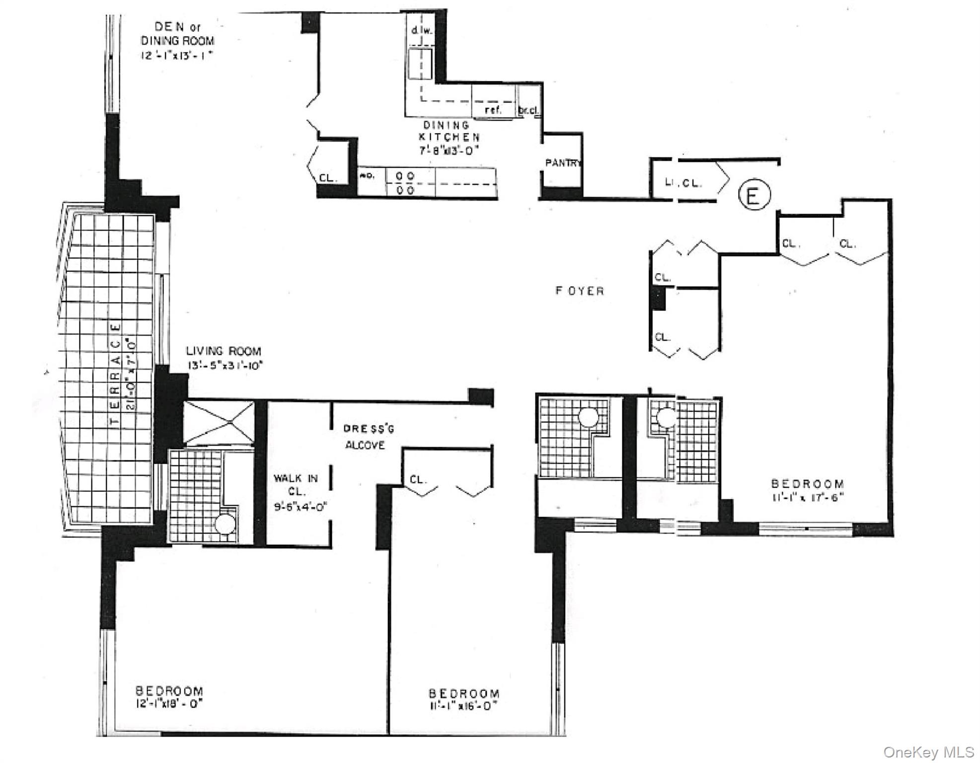
| Detay | 3 chanm, 3 twalèt, lave-vaiselle, machin lave, garaj, kondisyone lè, enteryè: 1688 ft2, 157m2 DOM: 48 jou |
| Ane konstriksyon | 1970 |
| Frè antretyen | $2,890 |
| Kondisyone lè | Kondisyonè lè santral |
![]() |
Raraman Disponib Renove Sponsor Twa Chambye! Byenveni nan nouvo kay sa a ki renove, twa chanm, twa twalèt ak yon teras. Anpil limyè ak vwazinaj lès, sid ak lwès. Antre san reta nan liy sa a ki trè demande a, ki gen chanm espasyal, kwizin ki fèt pou manje, dining L, ak anpil klozèt. Avantaj adisyonèl yo gen ladan nouvo planche, nouvo aparèy, ak nouvo pòt klozèt. Gen yon evalyasyon kapital chak mwa de $432.79 jiska 12/2026. Ko-op sa a ki ofri sèvis konplè a gen yon doorman ki la 24/24, yon Superentandan ki abite la, yon chanm pou lave sou plas, yon netwayaj sèch / koud, yon klib sante ak pisin andedan, jimnastik, klas egzèsis tout kalite, ak yon tèt vèt deyò bèlman desen ak yon sous dlo, gazebo, braslè dife, chemen pou mache, ak zòn pou chita ak detann. Machine/lave sèch yo pèmèt nan apatman an, pakin andedan disponib, ak chen yo akeyi. Whitehall sitiye nan Riverdale santral, ki nan distans pou mache ak boutik, restoran, transportasyon, pak, lekòl, ak legliz. Bibliyotèk Piblik la, teren tenis ak teren bezbòl nan Seton Park yo jis anfas lari a. Yon vwayaj 25 minit pou rive NYC atravè Metro North ak yon kondwi 15 minit rive nan midtown Manhattan fè sa a yon kay vrèman espesyal nan youn nan pi bèl bilding Riverdale yo. Pa gen Apwobasyon Komite.
Rarely Available Renovated Sponsor Three Bedroom! Welcome home to this newly renovated corner three bedroom, three bathroom with a terrace. Lots of light with eastern, southern and western views. Move right in to this sought after line featuring spacious rooms, eat-in kitchen, dining L, and abundant closets. Additional perks include new floors, new appliances, and new closet doors. There is a monthly capital assessment of $432.79 through 12/2026. This full service co-op features a 24-hour doorman, live-in Superintendent, on-site laundry room, dry cleaner/tailor, health club with indoor pool, gym, exercise classes of all kinds, and a magnificently designed landscaped outdoor green roof with waterfall, gazebo, fire pit, walking path, and sitting areas for relaxing. Washer/dryers are permitted in the apartment, indoor parking is available, and dogs are welcome. The Whitehall is located in central Riverdale within walking distance of shops, restaurants, transportation, parks, schools, and houses of worship. The Public Library, tennis courts and baseball fields at Seton Park are across the street. A 25 minute commute to NYC via Metro North and a 15 minute drive to midtown Manhattan makes this a truly special home in one of Riverdale's premiere buildings. No Board Approval. © 2025 OneKey™ MLS, LLC







